wpisz słowo:   
 Sobota,  18 Kwietnia 2026
 
 
A  A  A

Nieruchomość - Wolsztyn, ul. Poznańska 8

 

 

Lokal użytkowy w Wolsztynie przeznaczona na prowadzenie działalności usługowo-handlowej

 

 

LOKALIZACJA


Obręb ewidencyjny i numer działki : obręb Wolsztyn II, działka nr 397/1
Adres: Wolsztyn, ul. Poznańska 8
Gmina: Wolsztyn
Województwo / powiat: wielkopolskie, powiat wolsztyński
Współrzędne GPS: 52.1177929, 16.1122200
Zobacz nieruchomość na mapach: wolsztyn.e-mapa.net geoportal.gov.pl Mapy Google

 

 

INFORMACJE DOTYCZĄCE NIERUCHOMOŚCI


Właściciel lokalu: Zakład Gospodarki Mieszkaniowej w Wolsztynie
Oznaczenie w księdze wieczystej
oraz w ewidencji gruntów i budynków:
Księga wieczysta PO1E/00026175/8 prowadzona przez Sąd Rejonowy w Wolsztynie IV Wydział Ksiąg Wieczystych
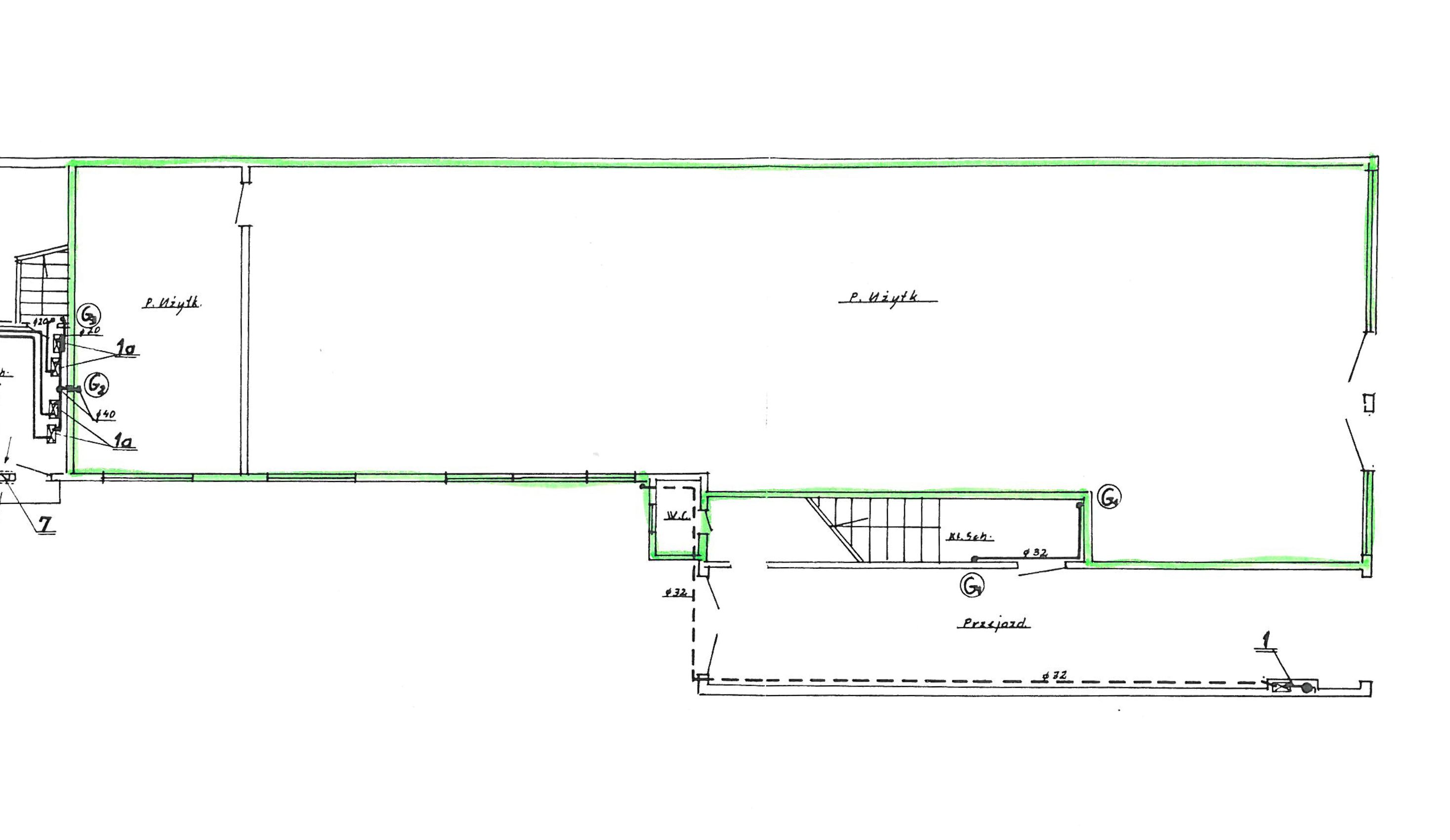
Powierzchnia lokalu w m²: Powierzchnia użytkowa lokalu 161,4 m²
Opis Nieruchomości:

Lokal zlokalizowany na parterze kamienicy w ścisłym centrum miasta.

Posiada przeszkloną witrynę z automatycznie rozsuwanymi drzwiami, wychodzącą bezpośrednio na ulicę Poznańską.

Lokal składa się z głównego, dużego pomieszczenia oraz zaplecza socjalnego w postaci biura i toalety.

W lokalu wyposażony jest w instalacje: elektryczną, wodociągową, kanalizacyjną, teleinformatyczną, ogrzewania - C.O. z lokalnej kotłowni.

Standard wykończenia: ściany i sufit pokryte farbami emulsyjnymi, posadzka z płytek ceramicznych.

Bezpośrednie sąsiedztwo stanowią kamienice mieszkalne z lokalami handlowo-usługowymi.

Przeznaczenie lokalu i sposób zagospodarowania: Lokal użytkowy przeznaczony na prowadzenie działalności usługowo-handlowej.
Okres umowy: Najem na czas określony 10 lat.
Cena wywoławcza czynszu za 1 m²: 25,92 zł za 1 m² + należny podatek VAT.
Termin wnoszenia opłat: Czynsz najmu płatny z góry do 10-go każdego miesiąca.
Opłaty dodatkowe: Podatek od nieruchomości, opłaty związane z użytkowaniem lokalu tj. wody, odbioru ścieków sanitarnych, energii elektrycznej, dostawy ciepła i wywozu odpadów stałych.
Uwagi: Najem lokalu w drodze przetargu ustnego nieograniczonego.

 

 

KONTAKT


Zakład Gospodarki Mieszkaniowej w Wolsztynie, ul. Fabryczna 13
 ▪ Karolina Przybysz-Dłużak tel. 68 347 27 56  wew. 22,   e-mail: zgm@wolsztyn.pl 
 ▪ Paweł Gmerek - Dyrektor zakładu tel. 68 347 27 56

 

 

ZDJĘCIA


 

Urząd Miejski w Wolsztynie  Urząd Miejski w Wolsztynie  Urząd Miejski w Wolsztynie  Urząd Miejski w Wolsztynie  Urząd Miejski w Wolsztynie

 


 

 

 

 



Ostrzeżenia meteorologiczne...

Urząd Miejski w Wolsztynie
2026-03-30 | Ostrzeżenia meteorologiczne - Przymrozki
Urząd Miejski w Wolsztynie
2026-02-20 | Komunikat meteorologiczny - Opady marznące
Urząd Miejski w Wolsztynie
2026-02-20 | Ostrzeżenia meteorologiczne - Opady marznące
Urząd Miejski w Wolsztynie
2026-02-10 | Komunikat meteorologiczny - Gęsta mgła
Urząd Miejski w Wolsztynie
2026-02-10 | Ostrzeżenia meteorologiczne - Opady marznące
zobacz więcej ostrzeżeń meteo...


Oferta inwestycyjna
Gminne inwestycje
Fundusze zewnętrzne
Wolsztyńska Komunikacja Gminna


Zgłoś awarię
Jakość powietrza
Kamery online
Sprawdź dowód
Kultura
Edukacja
Portal esesja
Strefa Płat. Parkowania
Biblioteka Publiczna
Karta Dużej Rodziny
Ochrona powietrza
Opieka nad zabytkami
Wirtualny spacer
e-Zamówienia
e-Mapa
Nieruchomości


Nadchodzące wydarzenia - patronat Burmistrza Wolsztyna...

2026-05-02
Urząd Miejski w Wolsztynie
2026-04-10
Urząd Miejski w Wolsztynie
2026-04-10
Urząd Miejski w Wolsztynie
2026-04-09
Urząd Miejski w Wolsztynie
2026-03-12
Urząd Miejski w Wolsztynie
zobacz więcej nadchodzących wydarzeń...

Nadchodzące wydarzenia - Wolsztyński Dom Kultury...
zobacz więcej nadchodzących wydarzeń...

Nadchodzące wydarzenia - Biblioteka Publiczna Miasta i Gminy Wolsztyn...
zobacz więcej nadchodzących wydarzeń...


URZĄD MIEJSKI W WOLSZTYNIE

Rynek 1
64 - 200 Wolsztyn
Tel. (68) 347 45 00

poniedziałek, wtorek, czwartek 7:00 - 15:00
środa 7:00 - 16:00
piątek 7:00 - 14:00

                    
                 
Osób online: 152
stat4u
wolsztyn.pl 2008 - 2026
"Zezwala się na wykorzystywanie materiałów zamieszczonych w witrynie w innych publikatorach, pod warunkiem podania źródła ich pochodzenia"